MINISTÉRIO PÚBLICO DA PARAÍBA
JOÃO PESSOA | PB
2013
Área: 10.835,15 m²
Autores: Heloísa Moura e William Veras (VMF Arquitetos) + Eder Alencar (ArqBr Arquitetura)
Colaboradores: Ayla Sauerbronn Gresta, Gisele Bernardes Cangussu, Thaís Losi, João Marcus Erre Felix, Fernanda de Moraes Goulart, Rodrigo Rezende e Lara Araújo.
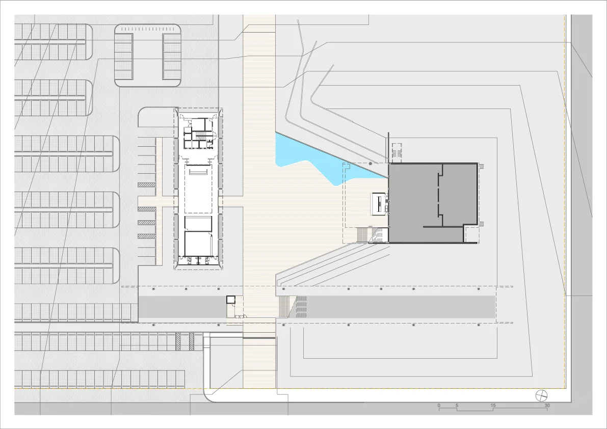
O partido do projeto para o Ministério Público da Paraíba em João Pessoa desenvolveu-se com base no entendimento de que, sendo esse uma Instituição Pública com corpo jurídico defensor do interesse público e coletivo, sua arquitetura deveria, tanto quanto possível, traduzir uma relação agregadora e de continuidade espacial com a cidade e com o povo, respeitando, ao mesmo tempo, suas premissas de privatividade, controle de segurança e hierarquia. Foi partindo dessa reflexão que o Ministério Público da Paraíba tomou forma de uma paisagem modelada, que respeita a escala do lugar e se integra com o urbano, num continuum, enriquecendo-o com a criação de novas relações e novos percursos e promovendo um equilíbrio entre o que é público e o que é privado.
O MPPB foi implantado, portanto, como uma resposta ao “urbano”: tem-se um eixo estruturador, traçado a partir das relações urbanas do terreno, que converge para uma praça, essencialmente pública, conformada pela desejada área de “solo permeável”, fartamente arborizada e ajardinada, e pelas edificações que acomodam as funções previstas no programa de necessidades.
As edificações: um edifício de 17 pavimentos, condensador da imagem institucional e da escala particular, que abriga as funções essenciais do Ministério Público; um edifício pavilhonar, abrigando as principais funções públicas, como o auditório e área para as exposições; e uma “caixa”, que abriga o auditório para 500 pessoas, sendo os últimos representantes da escala coletiva. Tendo em vista, ainda, o comprometimento do MMPB com a exemplaridade de suas ações, pensou-se em um projeto viável, acessível e pautado pelos princípios do desenvolvimento sustentável. No que tange à redução de impactos ambientais, merece destaque a implantação geral do conjunto, que toma partido da conformação atual do terreno, evitando escavações e terraplenos excessivos.
Quanto ao conforto ambiental, deve-se destacar a preocupação com a melhor implantação em função das incidências solares e o consequente tratamento dado às fachadas, com brises protegendo os ambientes internos ao longo de todo o ano, durante os horários comerciais de trabalho. As soluções adotadas de esquadria de vidro interna + brise móvel externo variam conforme a fachada e possibilitam, além da manutenção das vistas exuberantes que se tem a partir do terreno, o aproveitamento da iluminação e ventilação naturais. Essa tornando possível, inclusive, o condicionamento térmico dos ambientes através de meios passivos, diminuindo a utilização de equipamentos consumidores de energia. Ademais, o conjunto proposto está apto a incorporar soluções técnicas, como captação e reuso de águas pluviais ou águas servidas para, por exemplo, irrigação de jardins e descargas sanitárias; coleta seletiva; energia solar; etc.
